Spoločnosť KOBOK spol. s r. o. vyrába krbové vložky typu CHOPOK.Sú určené na spaľovanie dreva a drevených brikiet roštovým a bezroštovým spôsobom. Zabudovávajú sa teplovzdušným, hybridným a akumulačným spôsobom do krbov rôznych štýlov a tvarov. Sú alternatívnym zdrojom tepla s vysokou účinnosťou spaľovania, ktorý umocňuje a zútulňuje atmosféru vášho domova.Široký sortiment umožňuje vybrať model, ktorý splní vaše požiadavky a očakávania.
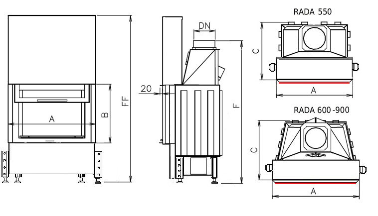
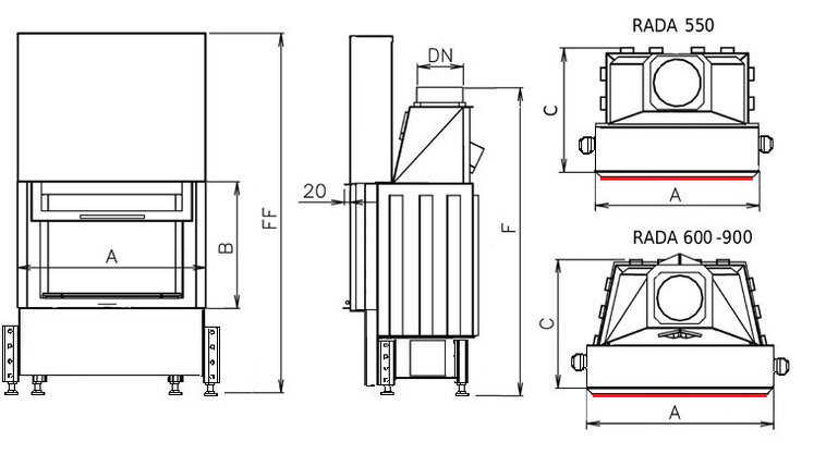
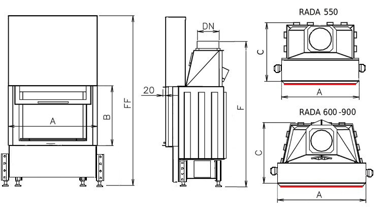
Krbové vložky sú pružným zvarencom zo žiaruvzdorného oceľového plechu, chráneného tepelne odolným ekologickým lakom. Konštrukcia je celopieskovaná, vhodne doplnená liatinovými a žiaruvzdornými materiálmi (šamot, žiarobetón), ktoré zabezpečujú tepelnú zotrvačnosť a vysokú životnosť. Dvierka presklené žiaruvzdorným keramickým sklom umožňujú pohľad na plameň v prehĺbenom ohnisku, bezpečnú a hospodárnu prevádzku.
Metóda skúšky krbových vložiek: ČSN EN 13229.
Krbovú vložku je možné vybaviť príslušenstvom, ktoré zvyšuje ich estetickú úroveň a praktické nasadenie: - vonkajší popolník /VOP/ - znížené ohnisko /ZO/ - segmentové ohnisko /SO/ - druhé sklo /DS/ - sklo modern/ SM/ druhé sklo modern /DSM/ - prikladacie dvierka /DPS/ - krycí rámik /KR/ - druhý plášť /DP/ - výsuvné dvierka /VD/.



